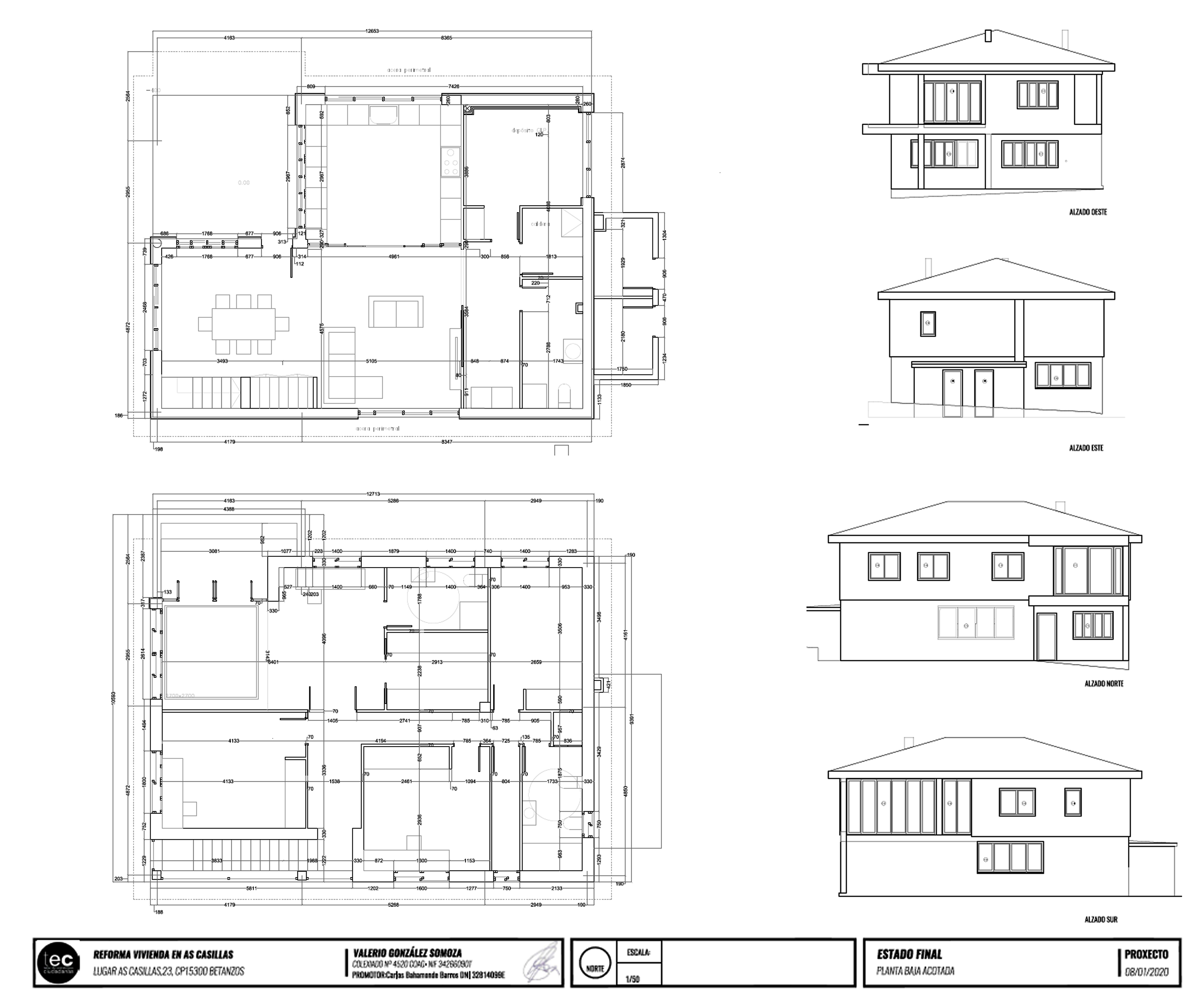
En plena ría de Betanzos, e en colaboración con Ángel Romo, levamos adiante a reforma integral dunha vivenda unifamiliar. Con acabados sinxelos e limpos para obter unha vivienda cómoda e moderna, centrada nas vistas á desembocadura do Mandeo





En plena ría de Betanzos, e en colaboración con Ángel Romo, levamos adiante a reforma integral dunha vivenda unifamiliar. Con acabados sinxelos e limpos para obter unha vivienda cómoda e moderna, centrada nas vistas á desembocadura do Mandeo




