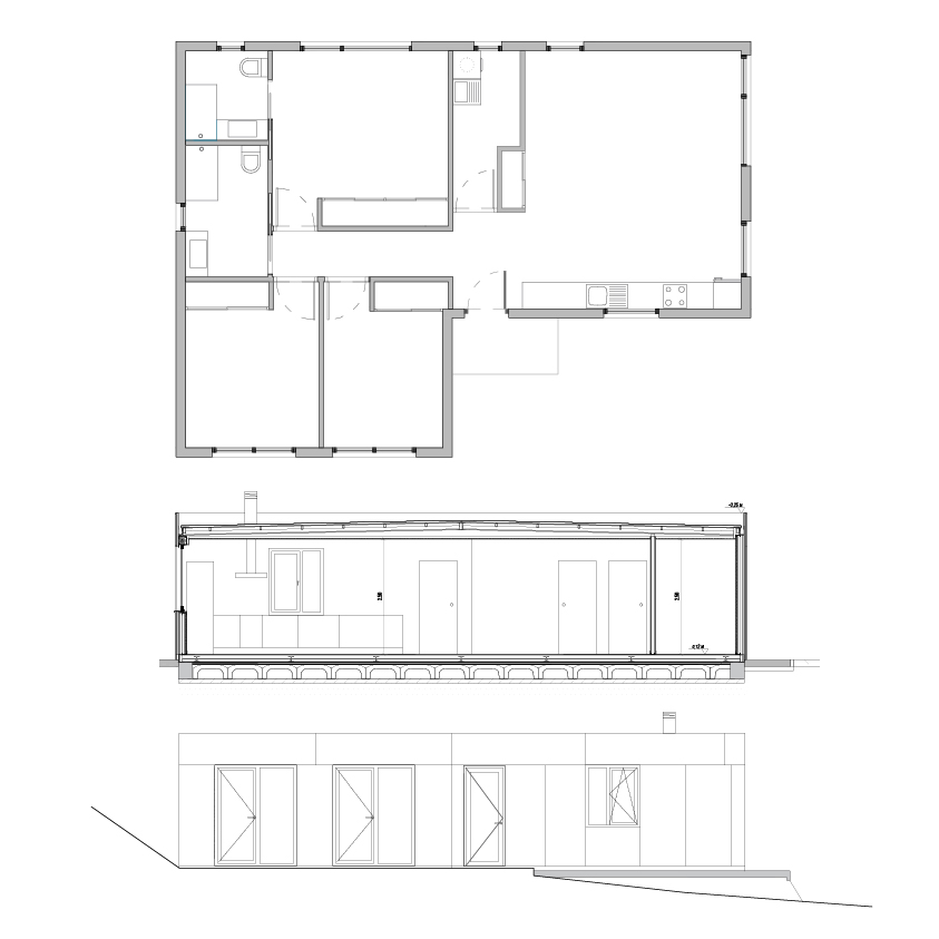
Desenvolvemento e implantación de vivenda modular en Bergondo. Trátase dunha solución rápida e moi competitiva para a túa unifamiliar illada. Bo soleamento, accesibilidade e contacto co exterior en cada estancia. Todo con prazos e orzamentos moi apurados.






